121 223rd #5

Carson CA 90745

$789,900

Status: Active


Property Details

Description

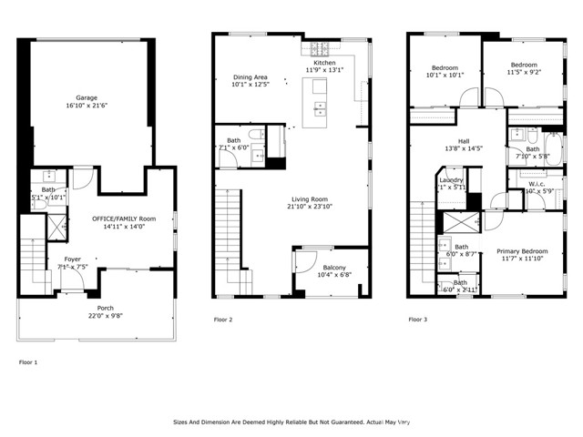
With only three homes remaining, KM Townhomes stand out as a rare opportunity for well-priced new construction in today’s limited South Bay inventory. This residence represents the last available larger floor plan in the community. Built by a well-respected South Bay builder known for craftsmanship and attention to detail, this approximately 1,903-square-foot home features three spacious bedrooms, three-and-a-half bathrooms, and a versatile bonus room that can function as a fourth bedroom, home office, gym, or media room. As an end unit, the home benefits from enhanced natural light and added privacy. Thoughtfully designed for modern living, the interiors include a professional-style kitchen with a 36-inch range, stainless steel appliances, sleek cabinetry, designer-selected finishes, in-unit washer and dryer hookups, and central air conditioning. Additional highlights include a private two-car garage, private patio, off-street guest parking, and gated pedestrian entry for added security and convenience. Each residence is equipped with high-efficiency solar panels designed to support long-term energy savings. Ideally located near major freeways, shopping, dining, and reputable schools, KM Townhomes offer a blend of modern comfort and everyday convenience. Limited builder incentives may be available on the final units.

Map Location


  • Log in
  • ×