10846 Huston

North Hollywood CA 91601

$3,395

Status: Active


Property Details

Description

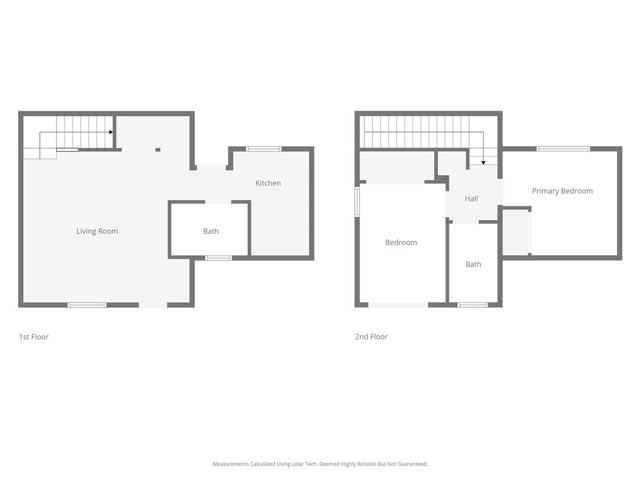
Welcome to 10846 Huston Street — a beautifully newly constructed, two-story ADU ideally located in a prime North Hollywood pocket adjacent to Studio City, Burbank, and Toluca Lake. Just minutes from major studios, dining, shopping, and convenient freeway access, this central location offers both lifestyle and accessibility. This is brand-new construction and has never been lived in, recently issued its Certificate of Occupancy and ready for immediate move-in. Designed to live like a private single-family home, the residence features no shared walls, providing a rare level of privacy, quiet, and independence not often found in an ADU. Spanning approximately 820 square feet, this thoughtfully designed 2-bedroom, 2-bathroom home offers a smart and functional floor plan. The main level features an open and inviting living area filled with natural light, a full bathroom, convenient in-unit washer and dryer, and direct access from the kitchen to the backyard for easy indoor-outdoor living. Upstairs, you’ll find two comfortable bedrooms, an additional full bathroom, and a private balcony off one of the bedrooms — perfect for morning coffee or evening relaxation. The home offers plentiful storage, including a spacious under-stair area and additional storage at the upstairs landing. Window treatments are installed throughout, and multiple split-system units on both levels provide efficient heating and cooling year-round. Enjoy a generously sized private backyard with excellent space for entertaining, relaxing, or dining al fresco. A long driveway accommodates parking for up to three vehicles — an exceptional convenience in this location. With true new construction, no prior occupants, private outdoor space, ample parking, and a highly desirable central location, 10846 Huston Street presents a rare leasing opportunity that will not last.

Map Location


  • Log in
  • ×