633 Groton

Burbank CA 91504

$1,495,000

Status: Active


Property Details

Description

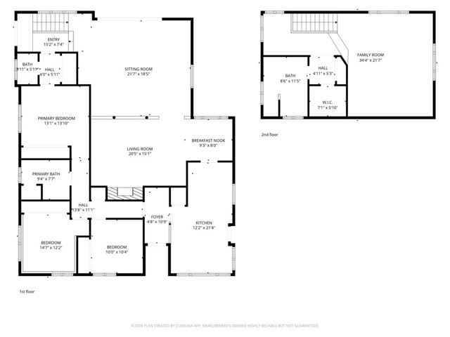
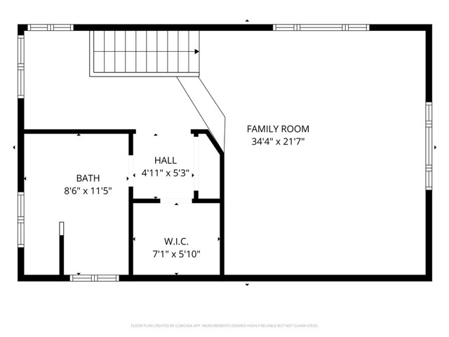
Amazing canvas to transform this North of Glenoaks Blvd home into your dream masterpiece. Approved plans for a full, 2,538 square feet remodel with new front porch. Ready to issue construction permits as soon as you close escrow. Bring your vision, creativity, and personal touches to unlock its full potential. Currently configured as a 4-bedroom, 3-bath residence, existing plans offer the opportunity to expand into a spacious 5-bedroom, 3.5-bath home. Boasting 2,538 square feet of interior living space on a 6,001 square foot lot, this property offers both comfort and flexibility. The detached two-car garage with excellent potential for ADU conversion, adding even more versatility and value to this exceptional property. Ideally located in a highly desirable neighborhood, this is a rare opportunity to create a truly exceptional home tailored to your lifestyle. Near award-winning schools, the Burbank Empire Center, the shops and dining of Downtown Burbank, and much more.

Map Location


  • Log in
  • ×