355 Cedar Ridge

Lake Arrowhead CA 92352

$1,450,000

Status: Active


Property Details

Description

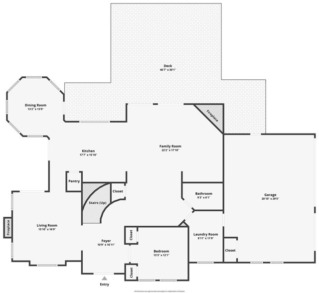
Lovely home in the gated community of Cedar Ridge Estates on nearly an acre of land!!! Spacious home with 3699 sq. ft. featuring 4 bedrooms and 3 baths with a flexible layout. The property is nicely landscaped and fully fenced, with a level driveway providing easy access from the street to the 3-car garage. Did we mention the ample off-street parking! Stone accents showcase the pillars and walkways taking you to the covered front porch. Big and open from the moment you step inside. The main level includes a formal living room with gas fireplace along with a bedroom that works well as a guest room or private office. The upgraded kitchen is designed for both everyday use and entertaining. Features include quartz countertops, a large island with secondary sink, walk-in pantry, custom soft-close cabinetry, two ovens and a 5-burner gas range. Large, sunny window over the sink. A long breakfast bar connects the kitchen and family room featuring a wood-burning fireplace with direct access to rear deck. A formal dining room sits just off the kitchen and also opens to the deck. An open, light-filled staircase leads to the upper level with two guest bedrooms, a full bath, and the spacious primary suite. The large guest room has a built-in desk w/bookcases; the closet is currently set up as an art studio, offering great light and shelving to conveniently store your supplies. The primary bedroom includes a large walk-in closet and the dual-sided gas fireplace is shared with the bathroom. Luxury bath features a jetted soaking tub, walk-in shower, double sinks and lighted vanity mirrors!! It’s a place of comfort for sure. Outdoor spaces are a highlight with the large deck overlooking a natural forest and seasonal stream…… complete with accent lighting for evening use. Easy to gather without feeling crowded. If natural light is important, this home has multiple skylights. Additional enhancements include 2 A/C’s, 2 FAU’s, whole house self-activated gas generator, central vacuum system… yes it works….. small fenced dog run. Built-ins and cabinets in garage. Well maintained showing pride of ownership. This area is truly a step outside the norm. A gated community with large stately homes on private lots with lush green landscaping along with a mature mountain forest ~ close to the lake and minutes to historic Lake Arrowhead Village, yet a sense of privacy and serenity exists here. Boat slip in MBM #4 Slip 7 and boat available for additional costs.

Map Location


  • Log in
  • ×