11633 Prosperity

Moreno Valley CA 92557

$499,000

Status: Active


Property Details

Description

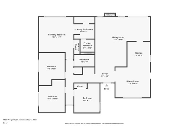
Welcome to 11633 Prosperity Ln in Moreno Valley, a beautifully upgraded single-story home offering comfort, style, and the perfect space to entertain! This single story 4-bedroom, 2-bath residence nestled in the privacy of a cul-de-sac features 1,592 sq ft of living space situated on a generous 7,405 sq ft lot. Enter inside to find durable and modern LVP flooring throughout, creating a seamless flow from room to room. The inviting living room boasts vaulted ceilings that enhance the natural light and create an open, airy feel. Enjoy peace of mind with major upgrades already completed, including new high-efficiency windows and a brand-new heating and A/C system with new ductwork, designed for year-round comfort and energy efficiency. An upgraded electrical panel with installed 220V wall charger is perfect to suit all your electric vehicle needs! Exit outside to your private backyard retreat featuring a huge Alumawood patio cover complete with recessed lighting and two ceiling fans. Whether you’re hosting summer BBQs, celebrating special occasions, or simply relaxing with family and friends, this outdoor space is truly perfect for gatherings. With thoughtful upgrades, functional living space, and an entertainer’s backyard, this home is ready for its next proud owner. Don’t miss the opportunity to make it yours!

Map Location


  • Log in
  • ×